01 grudnia 2025

Ideal 7000 NL

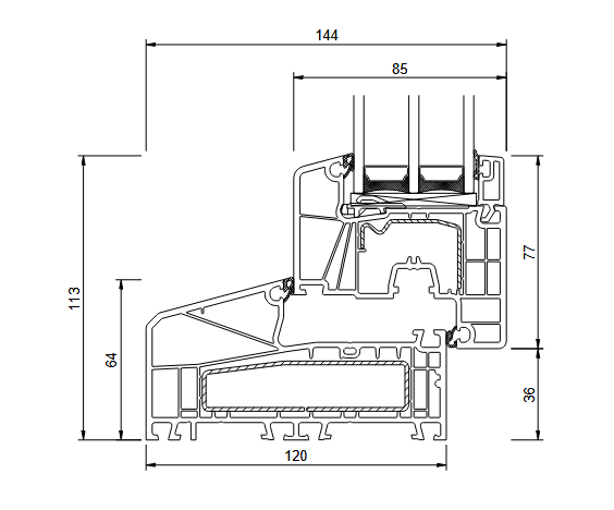
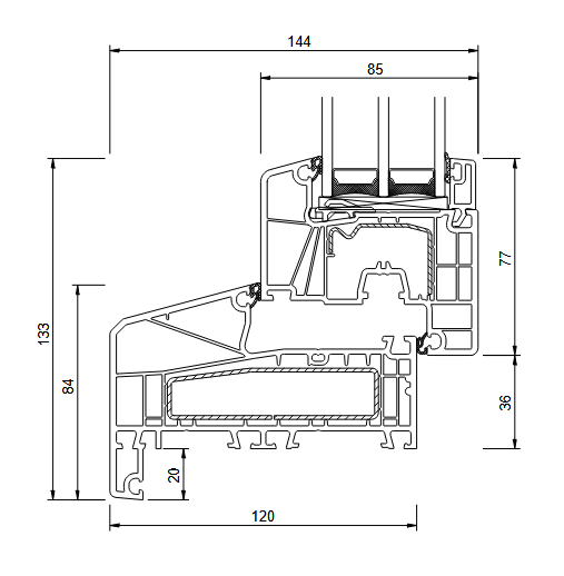
Okna typu Ideal 7000 NL są doskonałym rozwiązaniem dostarczanym przez firm e Drutex na rynek holenderski. Dzięki szerokiej na 120 mm ościeżnicy, zaopatrzonej w zewnętrzne przylgi, zapewnia łatwy, szybki i estetyczny sposób montażu okien w budynku wykonanym z cegły licowej (klinkieru) bez dodatkowej obróbki murarskiej.

5-komorowy profil klasy A/B, o całkowitej głębokości zabudowy 120 mm.

Producent: Drutex

 

DANE TECHNICZNE

Ulotka

Katalog

Cechy Charakterystyczne:

W standardzie:

 

pakiet szybowy 24 mm Ug = 1,1 W/(m2K)

 

 

ciepła ramka tworzywowa Swisspacer Ultimate - jako opcja bezpłatna

 

 

zgrzew V-Perfect.

 

 

4 zaczepy antywyważeniowe w zależności od wielkości skrzydła i systemu okuć.

 

 

mikrowentylacja.

 

 

klamka aluminiowa - Hoppe.

 

 

mechanizm blokady błędnego położenia klamki.

 

 

uszczelki obwiedniowe, przyszybowe oraz centralna w kolorze czarnym lub szarym.

 

 

wypełnienie dolnego rowka okuciowego.

 

 

profil dostępny w 3 kolorach: białym, antracytowym oraz kremowym.

 

możliwość zastosowania pakietu szybowego o grubości od 24 mm do 54 mm.

 

 

możliwość zastosowania szyb o podwyższonej izolacyjności akustycznej, laminowanych (bezpiecznych i antywłamaniowych), ornamentowych, przeciwsłonecznych, lustrzanych i piaskowanych.

 

 

szeroka gama kolorów folii ozdobnych, możliwość oklejenia okna z obu stron (dwa takie same lub różne kolory) lub tylko z jednej strony. 

 

 

możliwość zastosowania zawiasów ukrytych.

 

 

możliwość zastosowania nawiewnika.

 

 

blokada rozwierności.

Opcje:

Kolorystyka

Galeria

Skontaktuj się z nami →

Jesteś zainteresowany tym produktem?

Przycisk

Wszelkie prawa zastrzeżone dla Traverstone Trawertyn

© 2024