01 grudnia 2025

Ideal Neo MD

Smukłe i symetryczne profile Ideal Neo MD nawiązują do aktualnych trendów projektowych i nadają lekkości i elegancji oknom. Niezwykle wąskie złożenia profili to jeszcze więcej światła w pomieszczeniach. Atrakcyjne rozwiązanie zarówno w nowym budownictwie, jak i w renowacji.

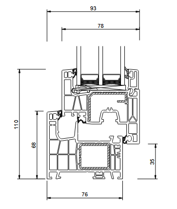
6-komorowy profil klasy B, o całkowitej głębokości zabudowy 76 mm.

Producent: Drutex

 

DANE TECHNICZNE

Zobacz Video

Ulotka

Katalog

Cechy Charakterystyczne:

W standardzie:

 

dwukomorowy pakiet szybowy Ug = 0,5 W/(m2K)

 

 

ciepła ramka tworzywowa Swisspacer Ultimate - jako opcja bezpłatna V-perfect.

 

 

zgrzew V-Perfect.

 

 

4 zaczepy antywyważeniowe w zależności od wielkości skrzydła i systemu okuć.

 

 

mikrowentylacja.

 

 

klamka aluminiowa.

 

 

mechanizm blokady błędnego położenia klamki.

 

 

uszczelki obwiedniowe, przyszybowe oraz centralna w kolorze czarnym lub szarym.

 

 

wypełnienie dolnego rowka okuciowego.

 

 

3 kolory profilu do wyboru: biały, brązowy lub antracytowy. 

 

 

listwa podparapetowa.

 

możliwość zastosowania pakietu szybowego o grubości od 24 mm do 54 mm.

 

 

możliwość zastosowania szyb o podwyższonej izolacyjności akustycznej, laminowanych (bezpiecznych i antywłamaniowych), ornamentowych, przeciwsłonecznych, lustrzanych i piaskowanych.

 

 

szeroka gama kolorów folii ozdobnych, możliwość oklejenia okna z obu stron (dwa takie same lub różne kolory) lub tylko z jednej strony. 

 

 

możliwość zastosowania zawiasów ukrytych.

 

 

możliwość zastosowania szprosów naklejanych PVC o szerokości 27 mm, 45 mm lub 65 mm i wewnątrzszybowych aluminiowych o szerokości 8 mm, 18 mm, 26 mm lub 45 mm.

 

 

szeroka gama profili dodatkowych (łączników, poszerzeń, profili pod parapet). 

 

 

możliwość wyposażenia w rolety, żaluzje fasadowe i moskitiery.

 

 

możliwość wyposażenia w automatykę typu Smart Home.

 

 

możliwość zastosowania nawiewnika.

 

 

blokada rozwierności.

 

 

klamki przy słupku ruchomym

Opcje:

Kolorystyka

Galeria

Skontaktuj się z nami →

Jesteś zainteresowany tym produktem?

Przycisk

Wszelkie prawa zastrzeżone dla Traverstone Trawertyn

© 2024