01 grudnia 2025

Ideal Neo MD Monoblock

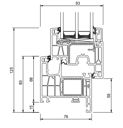
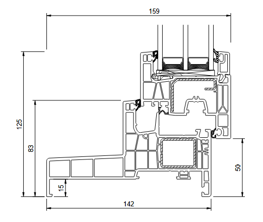
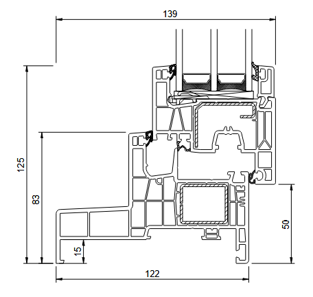
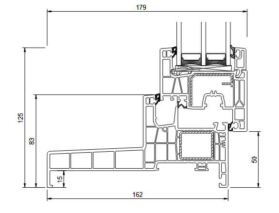
Ramy typu Monoblock przeznaczone są do budowy okien, które montowane są w warstwie ocieplenia. Duża gama szerokości ram Monoblock (76 mm, 122 mm, 142 mm, 162 mm) pozwala na odpowiedni ich dobór w zależności od grubości ocieplenia. Specjalna półka (parapet) znajdująca się od zewnętrznej strony ramy w sposób estetyczny maskuje ocieplenie na całym obwodzie okna unikając przy tym powstawania mostków termicznych. Wewnętrzna przylga ramy Monoblock zapewnia estetyczny montaż od wnętrza pomieszczenia bez konieczności stosowania obróbek gipsowych.

Producent: Drutex

 

DANE TECHNICZNE

Ulotka

Katalog

Cechy Charakterystyczne:

W standardzie:

 

dwukomorowy pakiet szybowy Ug = 0,5 W/(m2K)

 

 

ciepła ramka tworzywowa Swisspacer Ultimate.

 

 

zgrzew V-Perfect.

 

 

klamka aluminiowa.

 

 

mechanizm blokady błędnego położenia klamki.

 

 

uszczelki obwiedniowe, przyszybowe oraz centralna w kolorze czarnym lub szarym.

 

możliwość zastosowania pakietu szybowego o grubości od 24 mm do 52 mm.

 

 

możliwość zastosowania szyb o podwyższonej izolacyjności akustycznej, laminowanych (bezpiecznych i antywłamaniowych), ornamentowych, przeciwsłonecznych, lustrzanych i piaskowanych.

 

 

szeroka gama kolorów folii ozdobnych, możliwość oklejenia okna z obu stron (dwa takie same lub różne kolory) lub tylko z jednej strony. 

 

 

możliwość zastosowania zawiasów ukrytych.

 

 

możliwość zastosowania nawiewnika.

 

 

blokada rozwierności.

Opcje:

Kolorystyka

Galeria

Skontaktuj się z nami →

Jesteś zainteresowany tym produktem?

Przycisk

Wszelkie prawa zastrzeżone dla Traverstone Trawertyn

© 2024