01 grudnia 2025

Ideal Neo MD Renovation

System ram renowacyjnych wykorzystywany jest do montażu okien bez konieczności demontażu starych ościeżnic. Specyfika tego typu okien polega na wykorzystaniu specjalnych ram renowacyjnych z tzw. profilem maskującym, który obejmuje drewnianą ościeżnicę tworząc charakterystyczną opaskę od wewnątrz, a od zewnątrz możemy zastosować specjalne profile obudowujące. Profile maskujące w ramach posiadają różne szerokości (40 mm, 70 mm), ale możliwe jest również docięcie ich pod konkretne potrzeby.

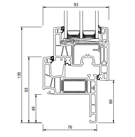
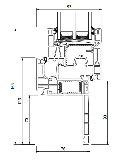
5/6-komorowy profil klasy B, o całkowitej głębokości zabudowy 76 mm.

Producent: Drutex

 

DANE TECHNICZNE

Ulotka

Katalog

Cechy Charakterystyczne:

W standardzie:

 

dwukomorowy pakiet szybowy Ug = 0,5 W/(m²K)

 

 

ciepła ramka tworzywowa Swisspacer Ultimate - jako opcja bezpłatna V-perfect.

 

 

zgrzew V-Perfect.

 

 

klamka aluminiowa.

 

 

mechanizm blokady błędnego położenia klamki.

 

 

uszczelki obwiedniowe, przyszybowe oraz centralna w kolorze czarnym lub szarym.

 

możliwość zastosowania pakietu szybowego o grubości od 24 mm do 52 mm.

 

 

możliwość zastosowania szyb o podwyższonej izolacyjności akustycznej, laminowanych (bezpiecznych i antywłamaniowych), ornamentowych, przeciwsłonecznych, lustrzanych i piaskowanych.

 

 

szeroka gama kolorów folii ozdobnych, możliwość oklejenia okna z obu stron (dwa takie same lub różne kolory) lub tylko z jednej strony. 

 

 

możliwość zastosowania zawiasów ukrytych.

 

 

możliwość zastosowania nawiewnika.

 

 

blokada rozwierności.

Opcje:

Kolorystyka

Galeria

Skontaktuj się z nami →

Jesteś zainteresowany tym produktem?

Przycisk

Wszelkie prawa zastrzeżone dla Traverstone Trawertyn

© 2024